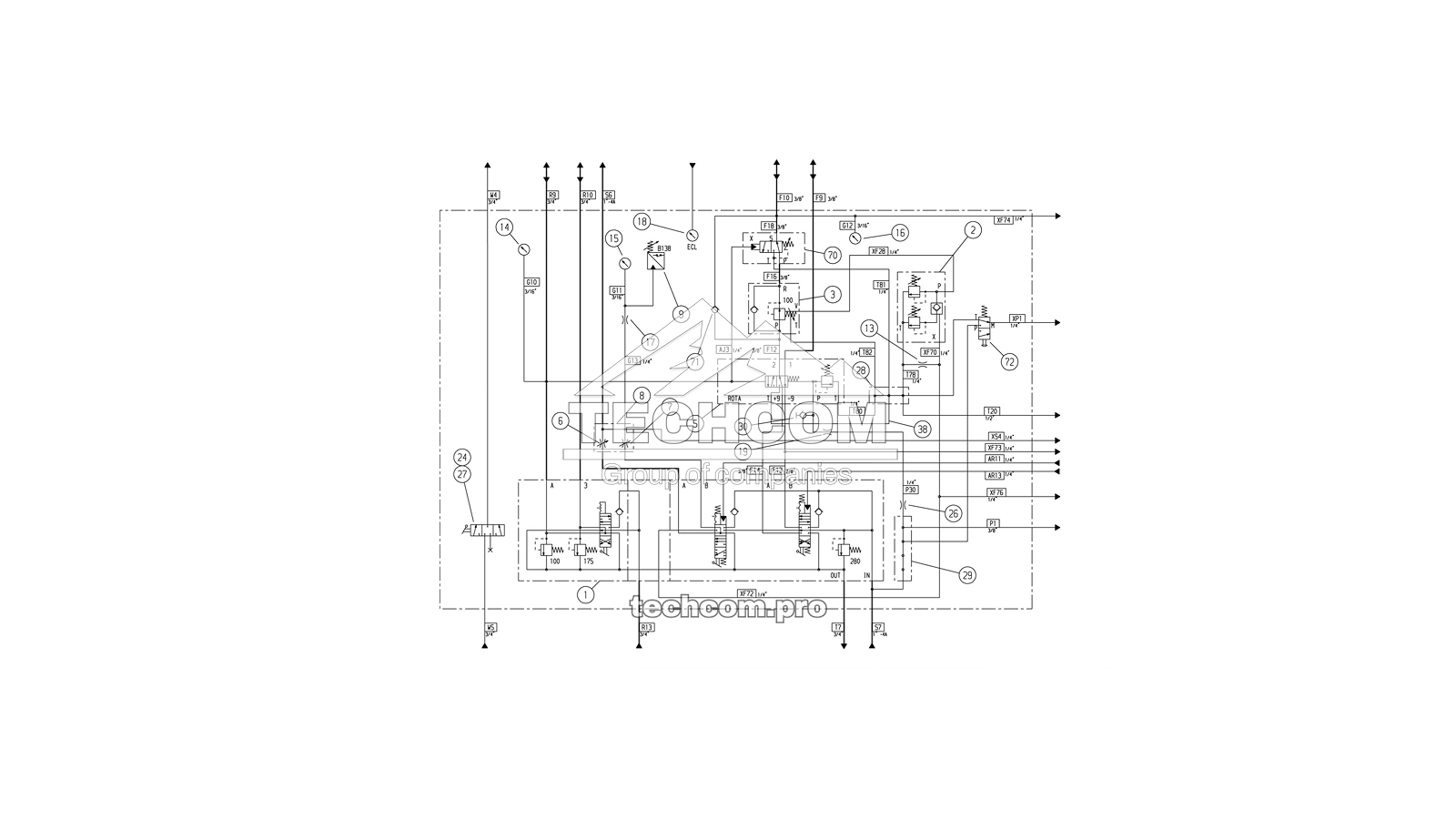
Панель управления 3217 8835 56 отвечает за координацию работы ключевых гидравлических и электрических систем буровой установки Epiroc (Atlas Copco) Boomer 282. В её состав входят распределительные и дроссельные клапаны, манометры, элементы освещения и управления, обеспечивающие безопасное и точное выполнение буровых операций.
Список запчастей 3217883556
| Ref. | Номер детали | Альт. номер | Кол-во | Описание |
|---|---|---|---|---|
| 1 | 3217 9834 00 | 3217983400 | 1 | Распределительный клапан |
| 2 | 3217 8968 00 | 3217896800 | 1 | Блок клапанов |
| 3 | 3217 8937 00 | 3217893700 | 1 | Блок клапанов |
| 5 | 3125 0906 91 | 3125090691 | 1 | Клапанный блок |
| 6 | 3217 8840 05 | 3217884005 | 1 | Дроссельный клапан |
| 7 | 3217 8840 05 | 3217884005 | 1 | Дроссельный клапан |
| 8 | 3217 8840 51 | 3217884051 | 1 | Распределительная труба |
| 9 | 3176 4589 05 | 3176458905 | 1 | Датчик давления 40–400 бар |
| 13 | 3217 6513 02 | 3217651302 | 1 | Сужение D=0,8; 9/16-18 UN |
| 14 | 3177 3032 00 | 3177303200 | 1 | Манометр WIKA 0–250 бар |
| 15 | 3177 3147 00 | 3177314700 | 1 | Манометр WIKA 0–400 бар |
| 16 | 3177 3032 00 | 3177303200 | 1 | Манометр WIKA 0–250 бар |
| 17 | 3217 6513 01 | 3217651301 | 1 | Сужение D=0,6; 9/16-18 UN |
| 18 | 3176 8695 00 | 3176869500 | 1 | Манометр |
| 19 | 3217 6513 01 | 3217651301 | 1 | Сужение D=0,6; 9/16-18 UN |
| 20 | 3217 0010 02 | 3217001002 | 1 | Кнопка-пускатель ZB5-AA2 |
| 20 | 3217 0010 72 | 3217001072 | 1 | Промежуточная часть |
| 20 | 3217 0010 73 | 3217001073 | 1 | Контактный блок (NO) |
| 20 | 3217 0010 75 | 3217001075 | 1 | Защитная крышка |
| 21 | 3217 0010 72 | 3217001072 | 1 | Промежуточная часть |
| 21 | 3217 0010 74 | 3217001074 | 1 | Контактный блок (NC) |
| 21 | 3217 0010 87 | 3217001087 | 1 | Грибовидная кнопка |
| 22 | 3217 9196 00 | 3217919600 | 1 | Освещение |
| 23 | 1089 0289 01 | 1089028901 | 1 | Сигнальная лампа C11 |
| 24 | 3177 5048 00 | 3177504800 | 1 | Шаровой кран |
| 25 | – | – | 1 | Каркас панели |
| 26 | 3217 6513 01 | 3217651301 | 1 | Сужение D=0,6; 9/16-18 UN |
| 27 | 3217 8946 10 | 3217894610 | 1 | Рычаг |
| 28 | 3217 9881 00 | 3217988100 | 1 | Блок дренажа |
| 29 | 3217 9881 10 | 3217988110 | 1 | Ответвительный блок |
| 30 | 3177 3016 00 | 3177301600 | 1 | Соединение |
| 38 | 3217 8966 20 | 3217896620 | 1 | Труба |
| 40 | 3217 8951 00 | 3217895100 | 1 | Табличка |
| 42 | 3217 8951 20 | 3217895120 | 1 | Табличка |
| 47 | 3217 8951 13 | 3217895113 | 1 | Табличка |
| 50 | 3217 8951 10 | 3217895110 | 1 | Табличка |
| 60 | – | – | 1 | Комплект шлангов |
| 62 | – | – | 1 | Крепёжная пластина |
| 70 | 3217 8014 01 | 3217801401 | 1 | Секвенционный клапан |
| 71 | 3177 3088 00 | 3177308800 | 1 | Обратный клапан |
| 72 | 3125 9005 02 | 3125900502 | 1 | Распределительный клапан |
| 73 | 3217 8951 05 | 3217895105 | 1 | Табличка |
| 74 | 0686 9250 60 | 0686925060 | 4 | Заглушка UNF 9/16-18 PEHD |
| 75 | 0686 9250 61 | 0686925061 | 4 | Заглушка UNF 3/4-16 PEHD |
| 76 | 0686 9250 62 | 0686925062 | 3 | Заглушка UNF 7/8-14 PEHD |
| 77 | 0686 9250 63 | 0686925063 | 1 | Заглушка UN 1 1/6-12 PEHD |
| 83 | – | – | 1 | Крепление |
| 84 | – | – | 1 | Набор разверток |
TechCom поставляет полный каталог запчастей для Boomer 282 с быстрой доставкой и технической поддержкой.