Cookies
Our website uses cookies, including web analytics services. By using the site, you agree to the processing of personal data by cookies. For more information on the processing of personal data, please see our Privacy Policy.
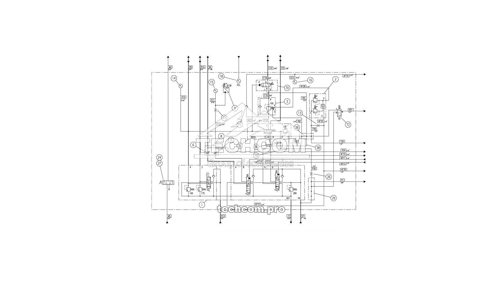
Part Number: 3217 8835 56 (3217883556)
The control panel 3217 8835 56 coordinates the key hydraulic and electrical systems of the Epiroc (Atlas Copco) Boomer 282 drilling rig. The assembly includes direction and throttle valves, gauges, lighting and operator controls to ensure safe, accurate drilling in demanding underground conditions.
| Ref. | Part No | Alt. Number | Qty | Description |
|---|---|---|---|---|
| 1 | 3217 9834 00 | 3217983400 | 1 | Direction valve |
| 2 | 3217 8968 00 | 3217896800 | 1 | Valve block |
| 3 | 3217 8937 00 | 3217893700 | 1 | Valve block |
| 5 | 3125 0906 91 | 3125090691 | 1 | Valve unit |
| 6 | 3217 8840 05 | 3217884005 | 1 | Throttle valve |
| 7 | 3217 8840 05 | 3217884005 | 1 | Throttle valve |
| 8 | 3217 8840 51 | 3217884051 | 1 | Distribution pipe |
| 9 | 3176 4589 05 | 3176458905 | 1 | Pressure switch 40–400 bar |
| 13 | 3217 6513 02 | 3217651302 | 1 | Restriction D=0.8; 9/16-18 UN |
| 14 | 3177 3032 00 | 3177303200 | 1 | Pressure gauge WIKA 0–250 bar |
| 15 | 3177 3147 00 | 3177314700 | 1 | Pressure gauge WIKA 0–400 bar |
| 16 | 3177 3032 00 | 3177303200 | 1 | Pressure gauge WIKA 0–250 bar |
| 17 | 3217 6513 01 | 3217651301 | 1 | Restriction D=0.6; 9/16-18 UN |
| 18 | 3176 8695 00 | 3176869500 | 1 | Pressure gauge |
| 19 | 3217 6513 01 | 3217651301 | 1 | Restriction D=0.6; 9/16-18 UN |
| 20 | 3217 0010 02 | 3217001002 | 1 | Trigger ZB5-AA2 |
| 20 | 3217 0010 72 | 3217001072 | 1 | Intermediate part |
| 20 | 3217 0010 73 | 3217001073 | 1 | Contact block (Normally Open) |
| 20 | 3217 0010 75 | 3217001075 | 1 | Sealing cover |
| 21 | 3217 0010 72 | 3217001072 | 1 | Intermediate part |
| 21 | 3217 0010 74 | 3217001074 | 1 | Contact block (Normally Closed) |
| 21 | 3217 0010 87 | 3217001087 | 1 | Mushroom push button |
| 22 | 3217 9196 00 | 3217919600 | 1 | Lighting |
| 23 | 1089 0289 01 | 1089028901 | 1 | Indication lamp C11 |
| 24 | 3177 5048 00 | 3177504800 | 1 | Ball cock |
| 25 | – | – | 1 | Panel frame |
| 26 | 3217 6513 01 | 3217651301 | 1 | Restriction D=0.6; 9/16-18 UN |
| 27 | 3217 8946 10 | 3217894610 | 1 | Lever |
| 28 | 3217 9881 00 | 3217988100 | 1 | Drainage block |
| 29 | 3217 9881 10 | 3217988110 | 1 | Branch block |
| 30 | 3177 3016 00 | 3177301600 | 1 | Coupling |
| 38 | 3217 8966 20 | 3217896620 | 1 | Pipe |
| 40 | 3217 8951 00 | 3217895100 | 1 | Plate |
| 42 | 3217 8951 20 | 3217895120 | 1 | Plate |
| 47 | 3217 8951 13 | 3217895113 | 1 | Plate |
| 50 | 3217 8951 10 | 3217895110 | 1 | Plate |
| 60 | – | – | 1 | Hose set |
| 62 | – | – | 1 | Attachment plate |
| 70 | 3217 8014 01 | 3217801401 | 1 | Sequence valve |
| 71 | 3177 3088 00 | 3177308800 | 1 | Check valve |
| 72 | 3125 9005 02 | 3125900502 | 1 | Direction valve |
| 73 | 3217 8951 05 | 3217895105 | 1 | Plate |
| 74 | 0686 9250 60 | 0686925060 | 4 | Cap UNF 9/16-18 PEHD |
| 75 | 0686 9250 61 | 0686925061 | 4 | Cap UNF 3/4-16 PEHD |
| 76 | 0686 9250 62 | 0686925062 | 3 | Cap UNF 7/8-14 PEHD |
| 77 | 0686 9250 63 | 0686925063 | 1 | Cap UN 1 1/6-12 PEHD |
| 83 | – | – | 1 | Attachment |
| 84 | – | – | 1 | Reamer set |
TechCom supplies a complete spare parts catalog for the Boomer 282 with fast delivery and technical support.
Our website uses cookies, including web analytics services. By using the site, you agree to the processing of personal data by cookies. For more information on the processing of personal data, please see our Privacy Policy.