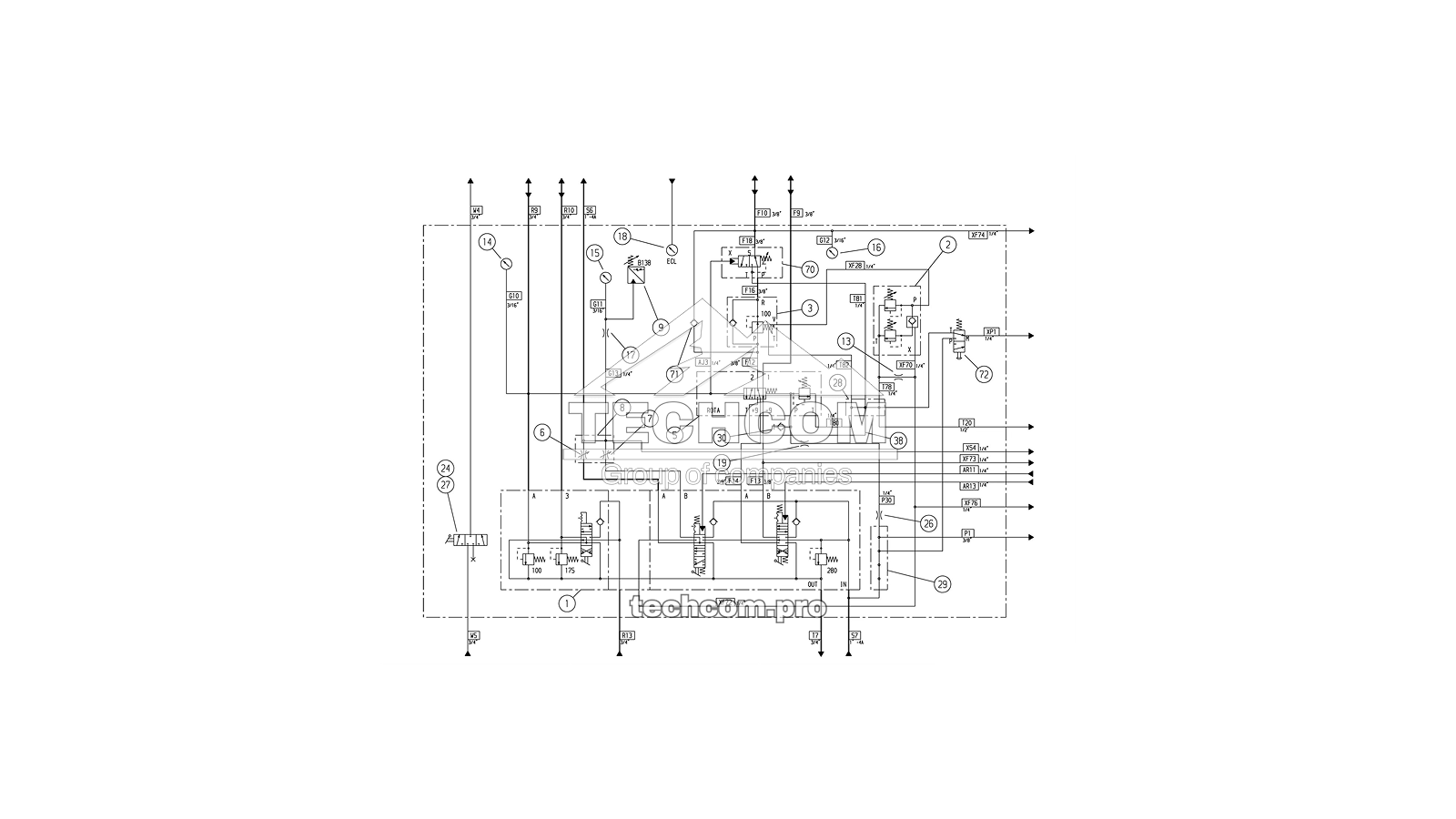
Le panneau de commande 3217 8835 56 (3217883556) est un ensemble clé pour la foreuse Epiroc Boomer 281, combinant des éléments hydrauliques et électriques afin d’assurer un forage précis et un fonctionnement fiable en exploitation minière souterraine. Il comprend des distributeurs hydrauliques, des valves d’étranglement, des manomètres, des voyants lumineux, des interrupteurs et des blocs de distribution, conçus pour résister aux conditions difficiles des tunnels.
Liste des pièces de rechange – Panneau de commande 3217883556
| Ref. No | Nº de pièce | Nº alt. | Qté | Description |
|---|---|---|---|---|
| 1 | 3217 9834 00 | 3217983400 | 1 | Distributeur hydraulique |
| 2 | 3217 8968 00 | 3217896800 | 1 | Bloc de valves |
| 3 | 3217 8937 00 | 3217893700 | 1 | Bloc de valves |
| 5 | 3125 0906 91 | 3125090691 | 1 | Unité de valve |
| 6 | 3217 8840 05 | 3217884005 | 1 | Valve d’étranglement |
| 7 | 3217 8840 05 | 3217884005 | 1 | Valve d’étranglement |
| 8 | 3217 8840 51 | 3217884051 | 1 | Tuyau de distribution |
| 9 | 3176 4589 05 | 3176458905 | 1 | Pressostat 40–400 BAR |
| 13 | 3217 6513 02 | 3217651302 | 1 | Restriction D=0,8; 9/16-18 UN |
| 14 | 3177 3032 00 | 3177303200 | 1 | Manomètre WIKA 2748/63 0–250 BAR |
| 15 | 3177 3147 00 | 3177314700 | 1 | Manomètre WIKA 2748/63 0–400 BAR |
| 16 | 3177 3032 00 | 3177303200 | 1 | Manomètre WIKA 2748/63 0–250 BAR |
| 17 | 3217 6513 01 | 3217651301 | 1 | Restriction D=0,6; 9/16-18 UN |
| 18 | 3176 8695 00 | 3176869500 | 1 | Manomètre |
| 19 | 3217 6513 01 | 3217651301 | 1 | Restriction D=0,6; 9/16-18 UN |
| 20 | 3217 0010 02 | 3217001002 | 1 | Détenteur ZB5-AA2 |
| 20 | 3217 0010 72 | 3217001072 | 1 | Pièce intermédiaire |
| 20 | 3217 0010 73 | 3217001073 | 1 | Bloc de contact (Normalement ouvert) |
| 20 | 3217 0010 75 | 3217001075 | 1 | Capot d’étanchéité |
| 21 | 3217 0010 72 | 3217001072 | 1 | Pièce intermédiaire |
| 21 | 3217 0010 74 | 3217001074 | 1 | Bloc de contact (Normalement fermé) |
| 21 | 3217 0010 87 | 3217001087 | 1 | Bouton-poussoir champignon |
| 22 | 3217 9196 00 | 3217919600 | 1 | Éclairage |
| 23 | 1089 0289 01 | 1089028901 | 1 | Témoin lumineux C11 |
| 24 | 3177 5048 00 | 3177504800 | 1 | Robinet à bille |
| 25 | 3217 8870 40 | 3217887040 | 1 | Châssis du panneau |
| 26 | 3217 6513 01 | 3217651301 | 1 | Restriction D=0,6; 9/16-18 UN |
| 27 | 3217 8946 10 | 3217894610 | 1 | Levier |
| 28 | 3217 9881 00 | 3217988100 | 1 | Bloc de drainage |
| 29 | 3217 9881 10 | 3217988110 | 1 | Bloc de dérivation |
| 30 | 3177 3016 00 | 3177301600 | 1 | Accouplement |
| 38 | 3217 8966 20 | 3217896620 | 1 | Tuyau |
| 40 | 3217 8951 00 | 3217895100 | 1 | Plaque |
| 42 | 3217 8951 20 | 3217895120 | 1 | Plaque |
| 47 | 3217 8951 13 | 3217895113 | 1 | Plaque |
| 50 | 3217 8951 10 | 3217895110 | 1 | Plaque |
| 60 | – | – | 1 | Jeu de flexibles |
| 62 | – | – | 1 | Plaque de fixation |
| 70 | 3217 8014 01 | 3217801401 | 1 | Valve de séquence |
| 71 | 3177 3088 00 | 3177308800 | 1 | Valve antiretour |
| 72 | 3125 9005 02 | 3125900502 | 1 | Distributeur hydraulique |
| 73 | 3217 8951 05 | 3217895105 | 1 | Plaque |
| 74 | 0686 9250 60 | 0686925060 | 4 | Bouchon UNF 9/16-18 PEHD |
| 75 | 0686 9250 61 | 0686925061 | 4 | Bouchon UNF 3/4-16 PEHD |
| 76 | 0686 9250 62 | 0686925062 | 3 | Bouchon UNF 7/8-14 PEHD |
| 77 | 0686 9250 63 | 0686925063 | 1 | Bouchon UN 1 1/6-12 PEHD |
| 83 | 3217 8870 41 | 3217887041 | 1 | Support |
| 84 | 3217 8969 40 | 3217896940 | 1 | Jeu d’alésoirs |
Fournie en unité complète, la 3217 8835 56 permet un remplacement rapide et une maintenance simplifiée, réduisant les temps d’arrêt et prolongeant la durée de vie de la foreuse. Découvrez la gamme complète de pièces de rechange pour Boomer 281 afin de garantir un rendement constant et sécurisé.