Cookies
Our website uses cookies, including web analytics services. By using the site, you agree to the processing of personal data by cookies. For more information on the processing of personal data, please see our Privacy Policy.
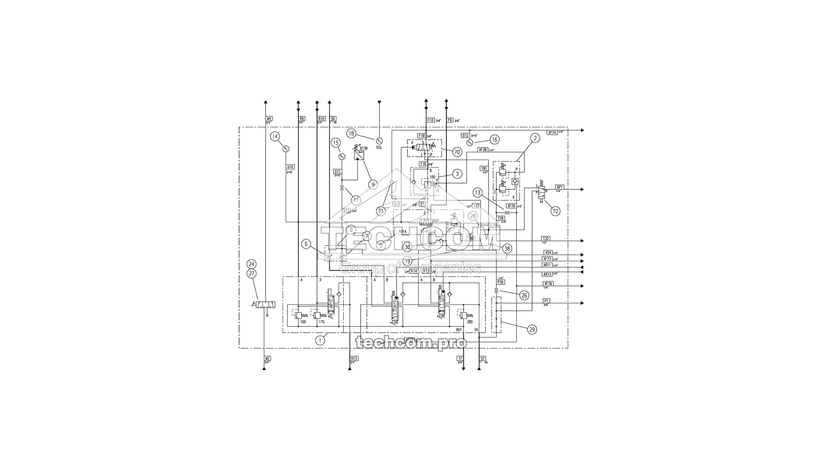
Part Number: 3217 8835 56 (3217883556)
The control panel 3217 8835 56 (3217883556) is a key assembly for the Epiroc Boomer 281 drilling rig, combining hydraulic and electric control elements to ensure accurate drilling and reliable rig operation in underground mining. It includes direction valves, throttle valves, pressure gauges, indicator lamps, switches, and distribution blocks, designed to withstand demanding tunneling conditions.
| Ref. No | Part No | Alt. Number | Qty | Description |
|---|---|---|---|---|
| 1 | 3217 9834 00 | 3217983400 | 1 | Direction Valve |
| 2 | 3217 8968 00 | 3217896800 | 1 | Valve Block |
| 3 | 3217 8937 00 | 3217893700 | 1 | Valve Block |
| 5 | 3125 0906 91 | 3125090691 | 1 | Valve Unit |
| 6 | 3217 8840 05 | 3217884005 | 1 | Throttle Valve |
| 7 | 3217 8840 05 | 3217884005 | 1 | Throttle Valve |
| 8 | 3217 8840 51 | 3217884051 | 1 | Distribution Pipe |
| 9 | 3176 4589 05 | 3176458905 | 1 | Pressure Switch 40–400 BAR |
| 13 | 3217 6513 02 | 3217651302 | 1 | Restriction D=0.8; 9/16-18 UN |
| 14 | 3177 3032 00 | 3177303200 | 1 | Pressure Gauge WIKA 2748/63 0–250 BAR |
| 15 | 3177 3147 00 | 3177314700 | 1 | Pressure Gauge WIKA 2748/63 0–400 BAR |
| 16 | 3177 3032 00 | 3177303200 | 1 | Pressure Gauge WIKA 2748/63 0–250 BAR |
| 17 | 3217 6513 01 | 3217651301 | 1 | Restriction D=0.6; 9/16-18 UN |
| 18 | 3176 8695 00 | 3176869500 | 1 | Pressure Gauge |
| 19 | 3217 6513 01 | 3217651301 | 1 | Restriction D=0.6; 9/16-18 UN |
| 20 | 3217 0010 02 | 3217001002 | 1 | Trigger ZB5-AA2 |
| 20 | 3217 0010 72 | 3217001072 | 1 | Intermediate Part |
| 20 | 3217 0010 73 | 3217001073 | 1 | Contact Block (Normally Open) |
| 20 | 3217 0010 75 | 3217001075 | 1 | Sealing Cover |
| 21 | 3217 0010 72 | 3217001072 | 1 | Intermediate Part |
| 21 | 3217 0010 74 | 3217001074 | 1 | Contact Block (Normally Closed) |
| 21 | 3217 0010 87 | 3217001087 | 1 | Mushroom Push Button |
| 22 | 3217 9196 00 | 3217919600 | 1 | Lighting |
| 23 | 1089 0289 01 | 1089028901 | 1 | Indication Lamp C11 |
| 24 | 3177 5048 00 | 3177504800 | 1 | Ball Cock |
| 25 | 3217 8870 40 | 3217887040 | 1 | Panel Frame |
| 26 | 3217 6513 01 | 3217651301 | 1 | Restriction D=0.6; 9/16-18 UN |
| 27 | 3217 8946 10 | 3217894610 | 1 | Lever |
| 28 | 3217 9881 00 | 3217988100 | 1 | Drainage Block |
| 29 | 3217 9881 10 | 3217988110 | 1 | Branch Block |
| 30 | 3177 3016 00 | 3177301600 | 1 | Coupling |
| 38 | 3217 8966 20 | 3217896620 | 1 | Pipe |
| 40 | 3217 8951 00 | 3217895100 | 1 | Plate |
| 42 | 3217 8951 20 | 3217895120 | 1 | Plate |
| 47 | 3217 8951 13 | 3217895113 | 1 | Plate |
| 50 | 3217 8951 10 | 3217895110 | 1 | Plate |
| 60 | – | – | 1 | Hose Set |
| 62 | – | – | 1 | Attachment Plate |
| 70 | 3217 8014 01 | 3217801401 | 1 | Sequence Valve |
| 71 | 3177 3088 00 | 3177308800 | 1 | Check Valve |
| 72 | 3125 9005 02 | 3125900502 | 1 | Direction Valve |
| 73 | 3217 8951 05 | 3217895105 | 1 | Plate |
| 74 | 0686 9250 60 | 0686925060 | 4 | Cap UNF 9/16-18 PEHD |
| 75 | 0686 9250 61 | 0686925061 | 4 | Cap UNF 3/4-16 PEHD |
| 76 | 0686 9250 62 | 0686925062 | 3 | Cap UNF 7/8-14 PEHD |
| 77 | 0686 9250 63 | 0686925063 | 1 | Cap UN 1 1/6-12 PEHD |
| 83 | 3217 8870 41 | 3217887041 | 1 | Attachment |
| 84 | 3217 8969 40 | 3217896940 | 1 | Reamer Set |
Supplied as a complete unit, the 3217 8835 56 control panel allows fast replacement and simplifies maintenance, reducing downtime and extending rig service life. Explore the full range of spare parts for Boomer 281 to maintain consistent performance and operational safety.
Our website uses cookies, including web analytics services. By using the site, you agree to the processing of personal data by cookies. For more information on the processing of personal data, please see our Privacy Policy.